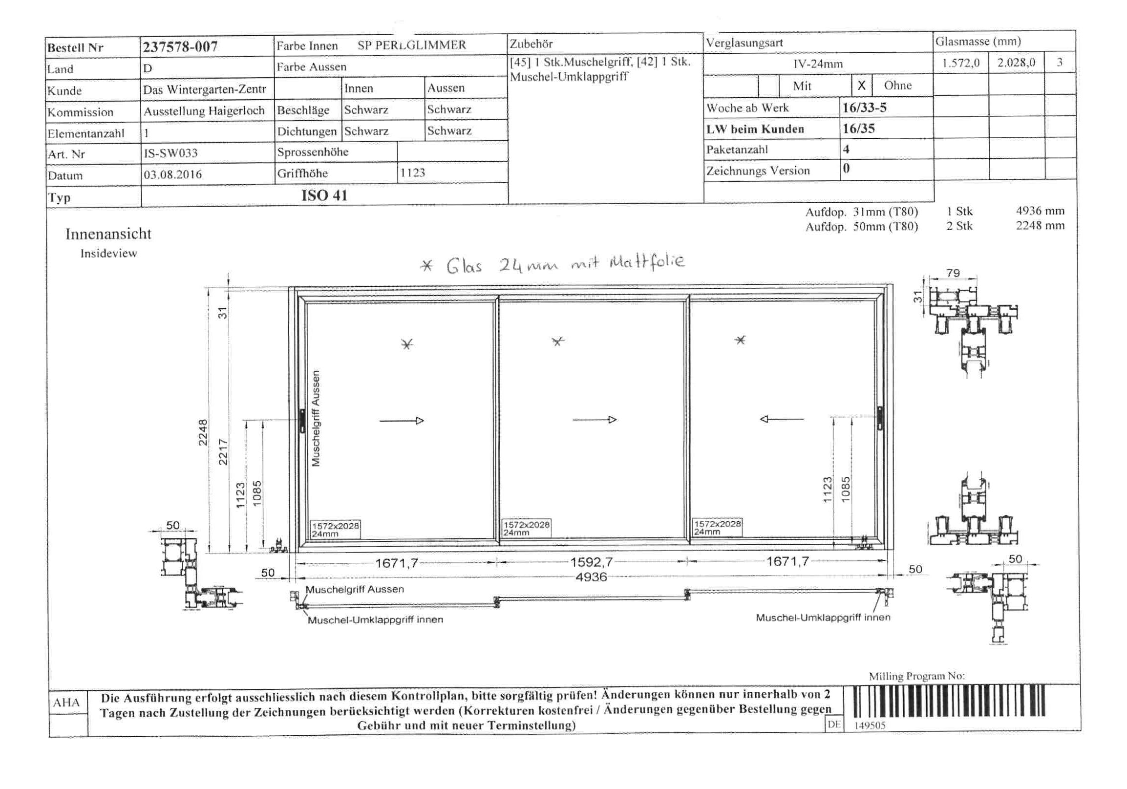
Schiebeelement ISO 41
Ursprünglicher Preis war: 4.500,00 €1.200,00 €Aktueller Preis ist: 1.200,00 €.
73% Off
Kompakte Design-Terrassenüberdachung 2300 x 2200 mm in SP EG-Eff P7 FS Metallic Tiger. VSG 10 mm Dach, Schneelast 85 kg/m², integrierter Dachablauf mit Laubschutz.
Beschreibung
Aluminium-Schiebeelement Typ ISO 41, Ausführung innen SP Perlglimmer, außen Schwarz.
Ausstellungsanlage Standort Haigerloch.
Technische Daten:
-
Lichtmaß: 1572 x 2028 mm
-
Verglasung: IV-24 mm (24 mm Isolierglas)
-
Glas: 24 mm mit Mattfolie
-
Beschläge: Schwarz
-
Dichtungen: Schwarz
-
Griff außen: Muschelgriff
-
Griff innen: Muschel-Umklappgriff
-
Griffhöhe: 1123 mm
-
Aufdopplung:
-
31 mm (T80) – 1 Stück, 4936 mm
-
50 mm (T80) – 2 Stück, 2248 mm
-
Fertigung gemäß freigegebenem Kontrollplan.
Neupreis inkl. Montage inklusive MwSt. € 6.500
Abverkaufspreis bei Selbst-Abbau inkl. MwSt.: 1200,00€
Montage auf Anfrage


